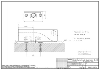
DL-RD * Floor-mounted pivot bearing with round bolts (RD)
- Stainless steel
Application Areas
- In connection with corner fittings for all-glass doors
Technical data
| DL-RD |
Downloads
LABELLING OBLIGATION: © GEZE GmbH
LABELLING OBLIGATION: © GEZE GmbH
LABELLING OBLIGATION: © GEZE GmbH
Variants & Accessories
* Notice about the products displayed
The products mentioned above may vary in form, type, characteristics and function (design, dimensions, availability, approvals, standards etc.) depending on the country. For questions please contact your GEZE contact person or send us an E-Mail .