Slimdrive

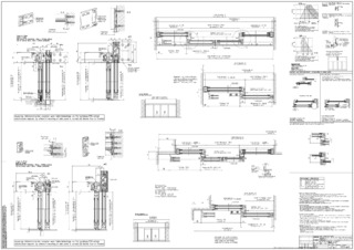
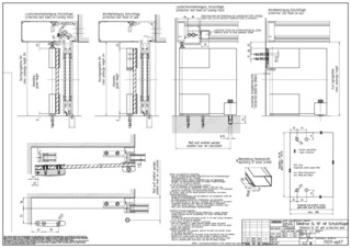
Slimdrive SL NT * Automatic linear sliding door system with low overall height and clear design line

Slimdrive SL NT
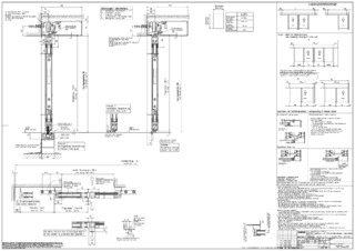
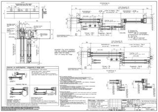
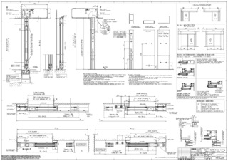
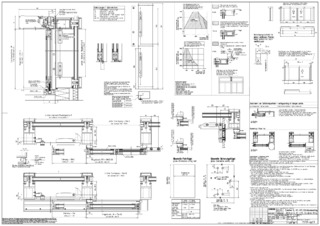
  • Very quiet running, low-wear direct current drive with a height of only 7 cm
  • Can be networked, and integrated into the building automation via open standard (BACnet)
  • Independent error recognition and recording
  • Freely configurable inputs and outputs for different functions
  • Integrated, rechargeable battery for emergency opening in case of safety-relevant faults, such as power failure
  • Self-cleaning roller carriage reduces maintenance effort and costs
Show more
  • Various mechanical and electrical locks are optionally available
Contact us

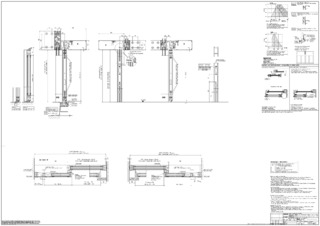
Application Areas

  • Single and double leaf sliding door systems
  • Interior and exterior doors with high access frequency
  • Façades with slim mullion-transom constructions
  • Glass façades with the highest design standards
  • Opening widths from 700 to 3000 mm possible
  • Door leaf weights of up to 125 kg per leaf
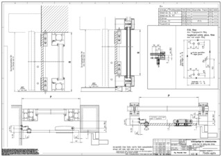
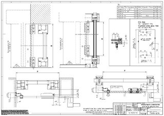
  • Suitable profile systems are fine-framed profile systems with ISO and MONO glass, all-glass systems (GGS) and on-site frames and timber leaves

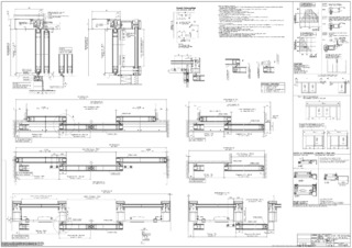
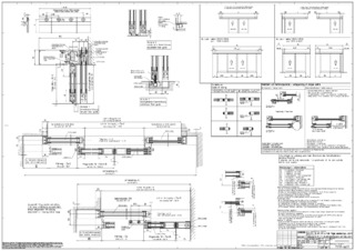
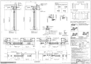
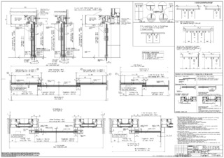
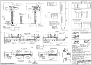
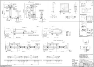
Technical data

Slimdrive SL NT
For 1-leaf door systems Yes
For 2-leaf door systems Yes
Fine-framed insulating glass Yes
MONO glass fine-framed Yes
All-glass system (GGS) Yes
Wooden leaf (on site) Yes
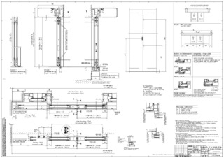
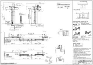
Height 70 mm
Depth 190 mm
Leaf weight (max.) 1-leaf 125 kg
Leaf weight (max.) 2-leaf 125 kg
Opening width 1-leaf 700 mm - 3000 mm
Opening width 2-leaf 900 mm - 3000 mm
Service temperature -15 - 50 °C
IP rating IP20
Disconnection from mains Main switch in the drive
Standard conformity DIN 18650, DIN EN ISO 13849: Performance Level D, EN 16005

Downloads

Variants & Accessories

Contact

GEZE Central +90-216-455-43-15