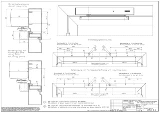
TS 5000 RFS 3-6 KB * Overhead door closer with guide rail for single leaf doors up to 1400 mm leaf width with electric free swing function and smoke switch control unit transom installation hinge side
- TS 5000 RFS KB door closer with electrohydraulic hold-open unit (230 V AC, transom installation hinge side)
- Guide rail with free swing lever
- Integrated power supply and smoke switch control unit, contamination indicator and adaption of the alarm threshold
- For doors with leaf width up to 1,400 mm
- Closing force adjustable EN 3-6
- Can be used for right and left single-action doors without conversion
- For fire and smoke protection doors (in case of door leaf installation with mounting plate)
- Hydraulic latching action and closing speed can be adjusted
- Visual closing force display
- Option: concealed drip loop
- All functions can be adjusted from the front
Application Areas
- For single-action doors, leaf width of up to 1400 mm
- Can be used for right and left hand doors without conversion
- For fire protection doors with corresponding suitability certificate
- Transom installation hinge side
- With comfort hold-open function to lock the door at the maximum opening angle
- Barrier-free access in accordance with DIN 18040
Installation situations in reference objects and videos
Technical data
| TS 5000 RFS 3-6 KB | |
| Closing force in accordance with EN 1154 | EN 3 - 6 |
| Leaf width (max.) | 1400 mm |
| Type of installation | Transom installation hinge side |
| Opening angle (max.) | 180 ° |
| Input voltage | 230 V AC |
| Suitability for fire protection doors | Yes |
| Free swing area | 85 ° - 160 ° |
| Closing force adjustable | Yes, stepless |
| Adjustable closing speed | Yes |
| Latching action adjustable | Yes, via valve |
| Back check integrated | No |
| Position of closing force adjustment | Front |
| Visual closing force display | Yes |
| Hold-open function | Electrically, for free swing function |
| Smoke switch integrated | Yes |
Downloads
Variants & Accessories
* Notice about the products displayed
The products mentioned above may vary in form, type, characteristics and function (design, dimensions, availability, approvals, standards etc.) depending on the country. For questions please contact your GEZE contact person or send us an E-Mail .