Slimdrive SL NT-FR * Automatic linear sliding door system for escape and rescue routes with low overall height and clear design line
- Escape route function with redundant drive design
- Very quiet running, low-wear direct current drive with a height of only 7 cm
- Can be networked, and integrated into the building automation via open standard (BACnet)
- Independent error recognition and recording
- Freely configurable inputs and outputs for different functions
- Integrated, rechargeable battery for emergency opening in case of safety-relevant faults, such as power failure
- Self-cleaning roller carriage reduces maintenance effort and costs
- Various mechanical and electrical locks are optionally available
Application Areas
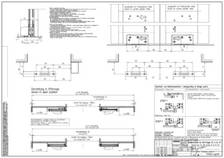
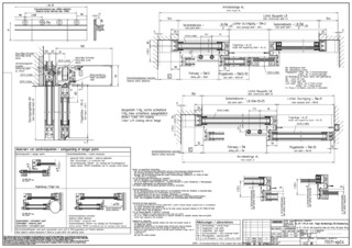
- Single and double leaf sliding door systems along escape and rescue routes
- Interior and exterior doors with high access frequency
- Façades with slim mullion-transom constructions
- Glass façades with the highest design standards
- Opening widths from 700 to 3000 mm possible
- Door leaf weights of up to 125 kg per leaf
- Suitable profile systems are fine-framed profile systems with ISO and MONO glass, all-glass systems (GGS) and on-site frames and timber leaves
Installation situations in reference objects and videos
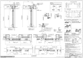
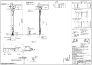
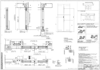
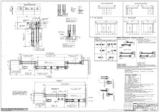
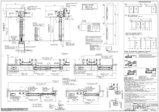
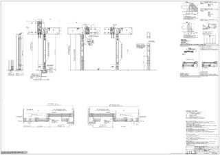
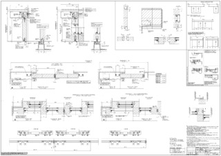
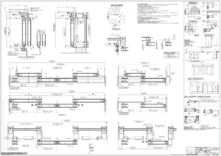
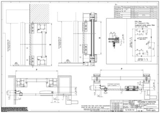
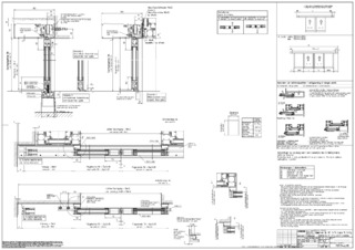
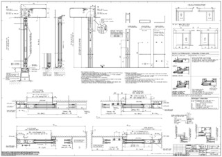
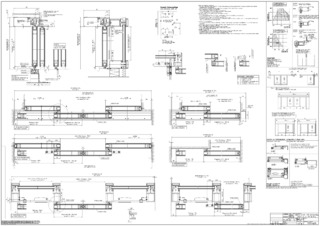
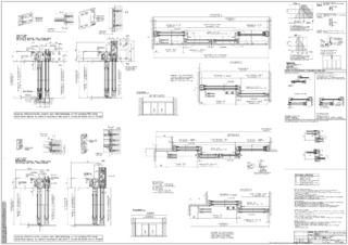
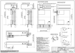
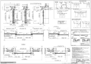
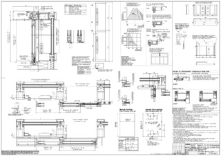
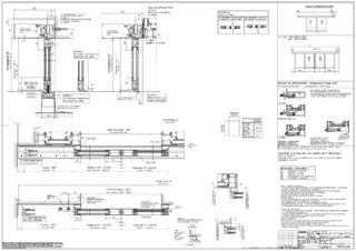
Technical data
| Slimdrive SL NT-FR | |
| For 1-leaf door systems | Yes |
| For 2-leaf door systems | Yes |
| Fine-framed insulating glass | Yes |
| MONO glass fine-framed | Yes |
| All-glass system (GGS) | Yes |
| Wooden leaf (on site) | Yes |
| Height | 70 mm |
| Depth | 190 mm |
| Leaf weight (max.) 1-leaf | 125 kg |
| Leaf weight (max.) 2-leaf | 125 kg |
| Opening width 1-leaf | 700 mm - 3000 mm |
| Opening width 2-leaf | 900 mm - 3000 mm |
| Service temperature | -15 - 50 °C |
| IP rating | IP20 |
| Disconnection from mains | Main switch in the drive |
| Standard conformity | AutSchR, DIN 18650, DIN EN ISO 13849: Performance Level D, EN 16005 |
Downloads
LABELLING OBLIGATION: © GEZE GmbH
LABELLING OBLIGATION: © Jean-Luc Kokel / GEZE GmbH
LABELLING OBLIGATION: © GEZE GmbH
LABELLING OBLIGATION: © Jean-Luc Kokel / GEZE GmbH
LABELLING OBLIGATION: © Lorenz Frey / GEZE GmbH
LABELLING OBLIGATION: © Lorenz Frey / GEZE GmbH
LABELLING OBLIGATION: © Lorenz Frey / GEZE GmbH
LABELLING OBLIGATION: © Sigrid Rauchdobler / GEZE GmbH
LABELLING OBLIGATION: © Sigrid Rauchdobler / GEZE GmbH
LABELLING OBLIGATION: © Jürgen Biniasch / GEZE GmbH
LABELLING OBLIGATION: © Jürgen Biniasch / GEZE GmbH
LABELLING OBLIGATION: © Jürgen Biniasch / GEZE GmbH
LABELLING OBLIGATION: © Dirk Wilhelmy / GEZE GmbH
Variants & Accessories
* Notice about the products displayed
The products mentioned above may vary in form, type, characteristics and function (design, dimensions, availability, approvals, standards etc.) depending on the country. For questions please contact your GEZE contact person or send us an E-Mail .