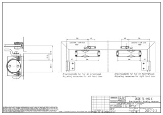
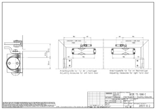
Dirsek kollar TS 1500/1000 C * Standart kol tertibatı
- 50 mm'ye kadar kasa derinliği için
Uygulama Alanları
- Sağ ve sol tek yöne açılımlı kapılar
Ürünün teknik özellikleri
| Dirsek kollar TS 1500/1000 C | |
| Sabitleme | Hayır |
İndirmeler
LABELLING OBLIGATION: © GEZE GmbH
Çeşitler ve Montaj malzemeleri
* Sergilenen ürünler hakkında bildirim
Yukarıda belirtilen ürünler, ülkeden ülkeye biçim, tür, nitelik ve fonksiyon (tasarım, boyut, kullanılabilirlik, onaylar, standartlar vs.) açısından değişebilir. Sorularınız için lütfen sizinle ilgilenen GEZE görevlisine başvurun veya bize bir e-posta gönderin E-Mail .