GEZE ActiveStop yatık durumda yapılandırılmış * İç mekanda menteşeli kapılar için iki taraflı kapı yavaşlatıcı, ahşap veya cam kapılar için yapılandırılmış
- 80°-140° serbest ayarlı kapı açılma açısı
- Sağdan ve soldan menteşeli kapılar için yer değiştirmeden uygulanabilir
- Kanat ağırlığı maksimum 45 kg olan kapılarda kontrollü açma ve kapatma
- Kapılarda yumuşak durdurma, sessiz kapatma ve konforlu açık tutma süresi
- Kapı çarpmaları, parmak sıkıştırmaları, duvar ve mobilya hasarları hemen hemen olanak dışı kalmaktadır
- Kapı açık konumda güvenli bir şekilde tutulur ve böylece kapı stopu gerekli değildir.
- Monte edilmiş durumda açma ve kapama freni valf ile ayarlanabilir
- Entegre emniyet valfi aşırı yüklenmeye karşı koruma sunmaktadır
Uygulama Alanları
- Sağ ve sol tek yöne açılımlı kapı'lar iç mekan
- Yüksek geçiş kolaylığı sağlayan oda kapıları
- Kanat eni 1100 mm’ye kadar olan tek yöne açılımlı kapılar
- Mevcut kapılarda yükseltme donatımı için üstten montaj şekli
- DIN 18040-2 uyarınca engelsiz erişimli girişler
Kaynak objelerde ve videolarda montaj örnekleri
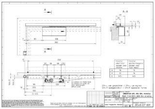
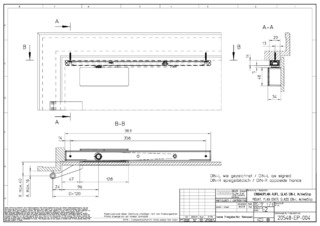
Ürünün teknik özellikleri
| GEZE ActiveStop yatık durumda yapılandırılmış | |
| Derinlik | 34 mm |
| Yükseklik | 68 mm |
| Kanat ağırlığı (maks.) | 45 kg |
| Kanat eni (maks.) | 1100 mm |
| Kapı tipi | Kör vuruşlu, Üzerine katlanmış |
| DIN-Sol ve DIN-Sağ eşit tasarım | Evet |
| Montaj türü | Üstüne yatar biçimde |
| Ayarlanabilir çekme amortisörü | Evet, valf üzerinden |
| Kapatma istikametinde çekme amortisörü başlangıcı | 25 ° |
| Serbest salınım mesafesi | 25 ° - 60 ° |
| Açma istikametinde çekme amortisörü başlangıcı | 60 ° |
| Ayarlanabilir kapı açılma açısı | Evet, kademesiz |
| Açık tutma konumu ayarlanabilir | 80 ° - 140 ° |
| Aşırı yüke karşı emniyet valfi | Evet |
İndirmeler
Çeşitler ve Montaj malzemeleri
* Sergilenen ürünler hakkında bildirim
Yukarıda belirtilen ürünler, ülkeden ülkeye biçim, tür, nitelik ve fonksiyon (tasarım, boyut, kullanılabilirlik, onaylar, standartlar vs.) açısından değişebilir. Sorularınız için lütfen sizinle ilgilenen GEZE görevlisine başvurun veya bize bir e-posta gönderin E-Mail .