Slimdrive

Slimdrive SL-FR-RC2 * RC2 direnç sınıfı doğrultusunda soyguna karşı emniyetli otomatik lineer kayar kapı sistemi

Slimdrive SL RC 2 Tek ve iki kanatlı sürme kapı sistemleri. En yüksek güvenlik gereksinimlerine sahip iç ve dış kapılar. Direnç sınıfı RC 2 (Resistance Class) uyarınca sertifikalı soyguna karşı emniyet. RC 2 fonksiyonu yalnızca kapının çubuklu kilit mekanizmasıyla kilitlendiği "Gece" çalışma modunda kullanılabilir.
  • Tahrik işlevli gerektirmeyen acil çıkış yolu fonksiyonu
  • Direnç sınıfı RC2'ye (Resistance Class) göre sertifikalı, soyguna karşı emniyet
  • RC2 işlevi, kapı artık kaçış yolu gereksinimlerini karşılaması gerekmediğinde, yalnızca "gece" çalışma modunda kullanılabilir.
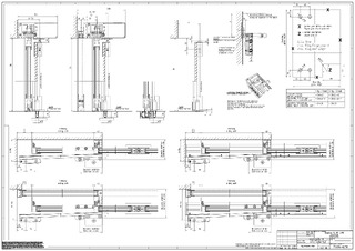
  • Bir çubuklu kilit mekanizması ve güçlendirilmiş profil bileşenleri ile donatılmıştır
  • Sadece 7 cm yükseklikte, gayet sessiz çalışan, uzun ömürlü doğru akım motoru
  • Ağ oluşturmaya uygundur ve açık bir standart (BACnet) kullanılarak bina otomasyonuna entegre edilebilir.
Daha fazla göster
  • Kendi başına hata tanıma ve protokol tutma
  • Farklı çalışma modları için serbest parametrelenebilen giriş ve çıkışlar
  • Elektrik kesintisi gibi güvenlik bakımından önemli hata durumlarında acil durum açma sistemi için entegre akü
Bizimle iletişime geçin

Uygulama Alanları

  • Acil çıkış ve kurtarma yollarında tek ve iki kanatlı otomatik kayar kapı sistemleri
  • Yüksek emniyet talepli iç ve dış kapılar
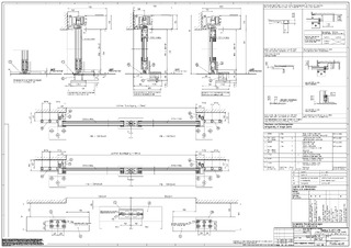
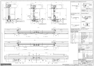
  • 800 ile 3000 mm arası açılım menzili mümkündür
  • Kanat başına 120 kg'a kadar olan kapı kanadı ağırlıkları
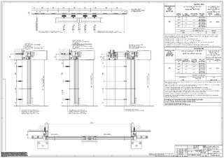
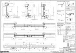
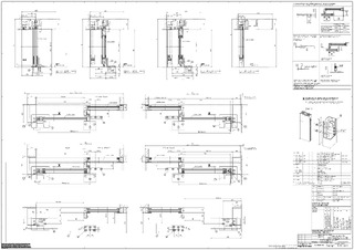
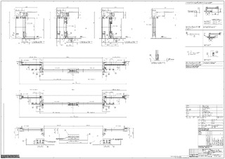
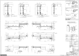
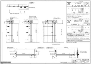
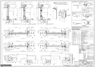
  • Uygun profil sistemleri, direnç sınıfı 2 RC2'ye göre ISO ve tek camlı dar çerçeveli profil sistemleridir.

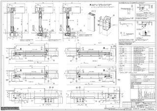
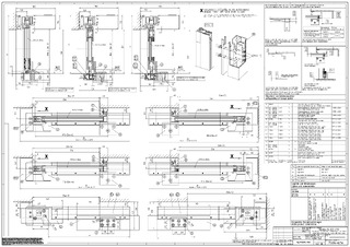
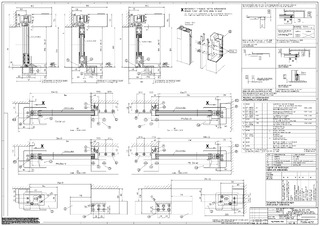
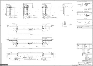
Ürünün teknik özellikleri

Slimdrive SL-FR-RC2
1 kanatlı kapı sistemleri için Evet
2 kanatlı kapı sistemleri için Evet
Dar çerçeveli ISO-Glas Evet
İnce çerçeveli MONO-cam Evet
Yükseklik 70 mm
Derinlik 190 mm
Kanat ağırlığı (maks.) 1 kanatlı 120 kg
Kanat ağırlığı (maks.) 2 kanatlı 120 kg
Açılma genişliği 1-kanatlı 800 mm - 3000 mm
Açılma genişliği 2-kanatlı 900 mm - 3000 mm
Çalışma sıcaklığı -15 - 50 °C
Koruma türü IP20
Şebekeden ayırma Mekanizmada ana şalter
Standartlara uygunluk AutSchR, DIN 18650, DIN EN ISO 13849: Performance Level D, EN 16005

İndirmeler

Çeşitler ve Montaj malzemeleri

İletişim

GEZE Central +90-216-455-43-15