Kilit gövdesi Boxer 2-4 * Açma süspansiyonlu entegre kapı kapatıcı EN 2-4 için ana gövde
- Bütün çalışma modları kurulu durumda ayarlanabilmektedir
- Serbest ayarlı kapatma kuvveti
- Valf üzerinden kapanma hızı üst taraftan ayarlı
- Son stoper valf üzerinden üstten ayarlanabilmektedir
- Valf üzerinden açma süspansiyonu üst taraftan ayarlı
- Kapı hidroliği mekanizması sağ ve sola açılımlı kapılar için kullanılabilir
Uygulama Alanları
- Yangın ve duman geçirmez kapı için, kapı ile uyumluluk kanıtı gereklidir
- Sağ ve sol tek yöne açılımlı kapılar
- Kanat eni 1100 mm’ye kadar olan tek yöne açılımlı kapılar, 130 kg kapı ağırlığına kadar
- 40 mm’den itibaren olan kapı kanadı kalınlıkları için
- Entegre montaj şekli
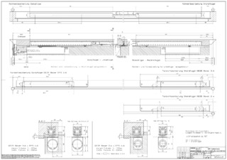
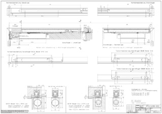
Ürünün teknik özellikleri
| Kilit gövdesi Boxer 2-4 | |
| EN 1154 doğrultusunda kapatma kuvveti | EN 2 - 4 |
| Kanat eni (maks.) | 1100 mm |
| Kanat ağırlığı (maks.) | 130 kg |
| Açılma açısı (maks.) | 120 ° |
| DIN-Sol ve DIN-Sağ eşit tasarım | Evet |
| Standartlara uygunluk | EN 1154:1996/A1:2002/AC:2006 |
| Yangına dayanıklı kapı'lara uygunluk | Evet |
| Uzunluk | 286 mm |
| Genişlik | 32 mm |
| Yükseklik | 45 mm |
| Kapatma kuvveti ayarlanabilir | Evet, serbest ayarlı |
| Kapanma hızı ayarlanabilir | Evet |
| Son stoper ayarlanabilir | Evet, valf üzerinden |
| Entegre açma süspansiyonu | Evet, hidrolik üzerinden ayarlanabilir |
| Kapatma kuvveti ayar pozisyonu | Üst |
| Aşırı yüke karşı emniyet valfi | Evet |
İndirmeler
Çeşitler ve Montaj malzemeleri
* Sergilenen ürünler hakkında bildirim
Yukarıda belirtilen ürünler, ülkeden ülkeye biçim, tür, nitelik ve fonksiyon (tasarım, boyut, kullanılabilirlik, onaylar, standartlar vs.) açısından değişebilir. Sorularınız için lütfen sizinle ilgilenen GEZE görevlisine başvurun veya bize bir e-posta gönderin E-Mail .