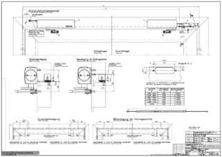
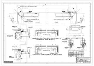
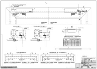
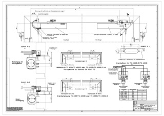
Sıralı kapanma mekanizması tetikleme mekanizması * TS 4000 IS / E-IS / R-IS için
- Vandalizme dayanıklı esnek Bovden teli
Uygulama Alanları
- Iki kanatlı kapı'larda kapanma sıralamasını düzenler
İndirmeler
Çeşitler ve Montaj malzemeleri
* Sergilenen ürünler hakkında bildirim
Yukarıda belirtilen ürünler, ülkeden ülkeye biçim, tür, nitelik ve fonksiyon (tasarım, boyut, kullanılabilirlik, onaylar, standartlar vs.) açısından değişebilir. Sorularınız için lütfen sizinle ilgilenen GEZE görevlisine başvurun veya bize bir e-posta gönderin E-Mail .