TS 5000 RFS 3-6 * Kanat eni 1400 mm’ye kadar olan serbest salınım fonksiyonlu ve duman dedektör bağlantı merkezli tek kanatlı kapılar için üstten monte raylı kapı hidroliği
- EN 3-6’in serbest ayarlanabilir kapatma kuvveti
- Şebeke gerilimi 230 V AC
- Sağdan ve soldan menteşeli kapılar için yer değiştirmeden uygulanabilir
- Serbest salınım fonksiyonu kapının yakl. 90°’ye tek seferlik açılmasından sonra
- Konforlu sabitleme fonksiyonu kapıyı serbest salınım mesafesinin sonunda sabitler
- Sinyali bir yangın durumunda normalde açık olan kapıyı kendiliğinden kapatan entegre duman dedektör bağlantı merkezi
- Kirlilik göstergesi ve alarm sinyal eşiği ile duman detektörü
- İlave duman dedektörü takılabilir
- Kapalı konuma gelmeden kısa bir süre önce kapıyı hızlandıran hidrolik son stoper
- Kapanma hızı isteğe göre ayarlanabilir
- Ayarın kolay kontrol edilmesi için optik kapatma kuvveti göstergesi
- Bütün fonksiyonlar ön taraftan ayarlanabilir
Uygulama Alanları
- Yangın ve duman geçirmez kapılar
- Sağ ve sol tek yöne açılımlı kapılar
- Kanat eni 1400 mm’ye kadar tek yöne açılımlı kapılar
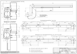
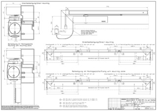
- Kanat montajı menteşe tarafı
- Serbest salınımlı entegre sabitlemeli sabitleme sistemi
- Engelsiz erişimli girişler DIN 18040
Ürünün teknik özellikleri
| TS 5000 RFS 3-6 | |
| EN 1154 doğrultusunda kapatma kuvveti | EN 3 - 6 |
| Kanat enine kadar (maks.) mm olarak DIN 18040 uyarınca engelsiz erişim | 1400 mm |
| Kanat eni (maks.) | 1400 mm |
| Montaj şekli | Kanat montajı menteşe tarafı |
| Açılma açısı (maks.) | 180 ° |
| Giriş gerilimi | 230 V AC |
| Yangına dayanıklı kapı'lara uygunluk | Evet |
| Serbest salınım mesafesi | 85 ° - 160 ° |
| Kapatma kuvveti ayarlanabilir | Evet, serbest ayarlı |
| Kapanma hızı ayarlanabilir | Evet |
| Son stoper ayarlanabilir | Evet, valf üzerinden |
| Entegre açma süspansiyonu | Hayır |
| Kapatma kuvveti ayar pozisyonu | Ön taraf |
| Optik kapatma kuvveti göstergesi | Evet |
| Sabitleme | Elektrikli, serbest salınım fonksiyonu için |
| Entegre duman detektörü | Evet |
İndirmeler
Çeşitler ve Montaj malzemeleri
* Sergilenen ürünler hakkında bildirim
Yukarıda belirtilen ürünler, ülkeden ülkeye biçim, tür, nitelik ve fonksiyon (tasarım, boyut, kullanılabilirlik, onaylar, standartlar vs.) açısından değişebilir. Sorularınız için lütfen sizinle ilgilenen GEZE görevlisine başvurun veya bize bir e-posta gönderin E-Mail .