TS 4000 IS * Sıralı kapanma mekanizması bulunan iki kanatlı kapı'lar için üstten monte kapı hidroliği, kollu
- Dirsek kollar ve tetikleme mekanizması bulunan iki kapı hidroliği TS 4000 IS ve TS 4000’den oluşan sistem
- Serbest ayarlanabilir kapatma kuvveti EN 1-6
- Sağdan ve soldan menteşeli kapılar için yer değiştirmeden uygulanabilir
- Sıralı kapanma mekanizması geçiş kanadını sabit kanat kapalı duruma gelinceye kadar bekleme pozisyonunda tutar
- Kapı kapalı konuma gelmeden kısa bir süre önce hızlandıran mekanik son stoper
- Kapanma hızı isteğe göre ayarlanabilir
- Entegre açma süspansiyonu, hızlı açılan kapıları frenler
- Ayarın kolay kontrol edilmesi için optik kapatma kuvveti göstergesi
- Bütün fonksiyonlar ön taraftan ayarlanabilir (son stoper hariç)
Uygulama Alanları
- Yangın ve duman geçirmez kapılar
- Tek yöne açılımlı iki kanatlı kapı'lar
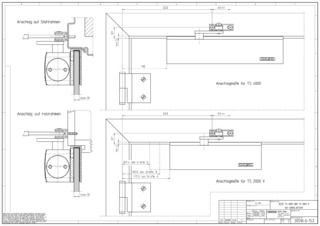
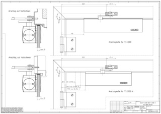
- 2800 mm’ye kadar bant mesafesi ve 1400 mm kanat eni olan tek yöne açılımlı kapı'lar
- Kanat montajı menteşe tarafı ve baş montajı menteşesiz tarafı
Ürünün teknik özellikleri
| TS 4000 IS | |
| EN 1154 doğrultusunda kapatma kuvveti | EN 1 - 6 |
| Kanat enine kadar (maks.) mm olarak DIN 18040 uyarınca engelsiz erişim | 1100 mm |
| Kanat eni (maks.) | 1400 mm |
| Montaj şekli | Kanat montajı menteşe tarafı, Baş montajı menteşesiz tarafı |
| Açılma açısı (maks.) | 180 ° |
| Yangına dayanıklı kapı'lara uygunluk | Evet |
| Kapatma kuvveti ayarlanabilir | Evet, serbest ayarlı |
| Kapanma hızı ayarlanabilir | Evet |
| Son stoper ayarlanabilir | Evet, dirsek kollar kiti üzerinden |
| Kapatma kuvveti ayar pozisyonu | Ön taraf |
| Optik kapatma kuvveti göstergesi | Evet |
| Entegre sıralı kapanma mekanizması | Evet |
İndirmeler
Çeşitler ve Montaj malzemeleri
* Sergilenen ürünler hakkında bildirim
Yukarıda belirtilen ürünler, ülkeden ülkeye biçim, tür, nitelik ve fonksiyon (tasarım, boyut, kullanılabilirlik, onaylar, standartlar vs.) açısından değişebilir. Sorularınız için lütfen sizinle ilgilenen GEZE görevlisine başvurun veya bize bir e-posta gönderin E-Mail .