Slimdrive SL NT * Düşük toplam yüksekliğe ve net tasarım çizgisine sahip otomatik düz çizgisel sürme kapı sistemi
- Sadece 7 cm yükseklikte, gayet sessiz çalışan, uzun ömürlü doğru akım motoru
- Ağ oluşturmaya uygundur ve açık bir standart (BACnet) kullanılarak bina otomasyonuna entegre edilebilir.
- Kendi başına hata tanıma ve protokol tutma
- Farklı çalışma modları için serbest parametrelenebilen giriş ve çıkışlar
- Elektrik kesintisi gibi güvenlik bakımından önemli hata durumlarında acil durum açma sistemi için entegre akü
- Kendi kendini temizleyen makaralı taşıyıcı bakım çalışmalarını azaltır
Uygulama Alanları
- Tek ve iki kanatlı sürme kapı sistemleri
- Yoğun geçiş sıklığının olduğu iç ve dış kapılar
- Dar kolon-kirişli yapı konstrüksiyonlu bina cepheleri
- En yüksek dizayn talepli cam cepheler
- 700 ile 3000 mm arası açılım menzili mümkündür
- Kanat başı 125 kg’a kadar kapı kanadı ağırlıkları
- Uygun profil sistemleri, ISO ve mono camlı, tam cam sistemli (GGS) ve yapı taraflı çerçeve ve ahşap kanatlı dar çerçeveli profil sistemleridir
Kaynak objelerde ve videolarda montaj örnekleri
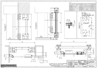
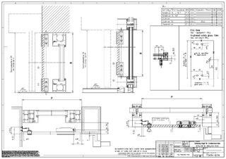
Ürünün teknik özellikleri
| Slimdrive SL NT | |
| 1 kanatlı kapı sistemleri için | Evet |
| 2 kanatlı kapı sistemleri için | Evet |
| Dar çerçeveli ISO-Glas | Evet |
| İnce çerçeveli MONO-cam | Evet |
| Tam cam sistemleri (GGS) | Evet |
| Ahşap kanat (yapı tarafı) | Evet |
| Yükseklik | 70 mm |
| Derinlik | 190 mm |
| Kanat ağırlığı (maks.) 1 kanatlı | 125 kg |
| Kanat ağırlığı (maks.) 2 kanatlı | 125 kg |
| Açılma genişliği 1-kanatlı | 700 mm - 3000 mm |
| Açılma genişliği 2-kanatlı | 900 mm - 3000 mm |
| Çalışma sıcaklığı | -15 - 50 °C |
| Koruma türü | IP20 |
| Şebekeden ayırma | Mekanizmada ana şalter |
| Standartlara uygunluk | DIN 18650, DIN EN ISO 13849: Performance Level D, EN 16005 |
İndirmeler
LABELLING OBLIGATION: © Massimo Brancher / GEZE GmbH
LABELLING OBLIGATION: © Robert Sprang / GEZE GmbH
LABELLING OBLIGATION: © Dirk Wilhelmy / GEZE GmbH
LABELLING OBLIGATION: © Dirk Wilhelmy / GEZE GmbH
LABELLING OBLIGATION: © Dirk Wilhelmy / GEZE GmbH
LABELLING OBLIGATION: © Robert Sprang / GEZE GmbH
LABELLING OBLIGATION: © Lorenz Frey / GEZE GmbH
LABELLING OBLIGATION: © Lorenz Frey / GEZE GmbH
LABELLING OBLIGATION: © Jean-Luc Kokel / GEZE GmbH
LABELLING OBLIGATION: © Erwin Kamphuis / GEZE GmbH
LABELLING OBLIGATION: © Erwin Kamphuis / GEZE GmbH
LABELLING OBLIGATION: © Erwin Kamphuis / GEZE GmbH
LABELLING OBLIGATION: © Erwin Kamphuis / GEZE GmbH
LABELLING OBLIGATION: © GEZE GmbH
LABELLING OBLIGATION: © GEZE GmbH
LABELLING OBLIGATION: © Dirk Wilhelmy / GEZE GmbH
LABELLING OBLIGATION: © Dirk Wilhelmy / GEZE GmbH
LABELLING OBLIGATION: © GEZE GmbH
LABELLING OBLIGATION: © GEZE GmbH
LABELLING OBLIGATION: © GEZE GmbH
LABELLING OBLIGATION: © GEZE GmbH
Çeşitler ve Montaj malzemeleri
* Sergilenen ürünler hakkında bildirim
Yukarıda belirtilen ürünler, ülkeden ülkeye biçim, tür, nitelik ve fonksiyon (tasarım, boyut, kullanılabilirlik, onaylar, standartlar vs.) açısından değişebilir. Sorularınız için lütfen sizinle ilgilenen GEZE görevlisine başvurun veya bize bir e-posta gönderin E-Mail .